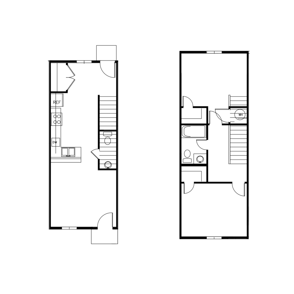
Sand Floor Plan
2 Bedroom Townhomes in Stephenville, TX
The Sand 2/1.5 is a townhome-style two-bedroom, 1.5-bath apartment with a private yard in select homes. At 938 sq. ft., this plan gives you extra space and outdoor living without sacrificing convenience.
