• Skip to main content
Alps Stephenville

Apply Now

  • Amenities
  • Gallery
  • Contact
Call for After Hours Emergency
Alps Stephenville
  • Floor Plans

    +

    • Alpine
    • Pine
    • Swiss
    • Cascade
    • Sierra
    • Sand
    • Denali
    • Peak
    • Glacier
    • Ridge
  • Amenities
  • Gallery
  • Contact
Call For More Information

View All Floorplans

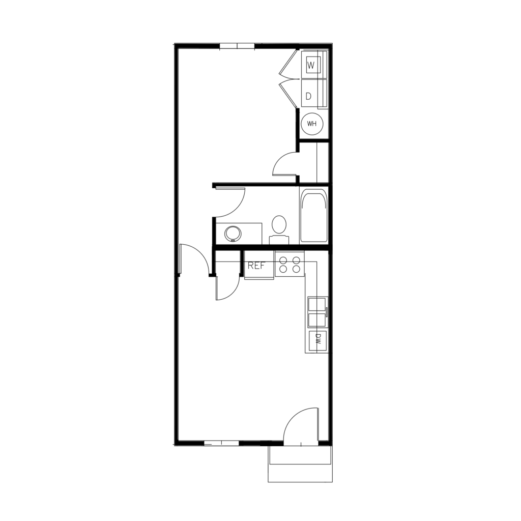
Alpine Floor Plan

Studio Apartments in Stephenville, TX

The Alpine 1/1 offers a smartly designed one-bedroom apartment with 1 bath and washer/dryer hookups. At 452 sq. ft., this efficient layout maximizes space while delivering modern finishes like stainless steel appliances and plank-style flooring.

SCHEDULE A TOUR OF THE ALPINE FLOOR PLAN
This field is for validation purposes and should be left unchanged.

Contact

3040 W. Washington
Stephenville, TX 76401

(254) 965-RENT

leasing@alpsstephenville.com

M-F: 8:30 am - 5:30 pm

Sat: 10:00 am - 2:00 pm

Sun: Closed

Alps Stephenville

Links

  • Floor Plans
  • Amenities
  • Gallery
  • Contact
  • College Apartments
Call For More Information
Alps Stephenville

Contact

3040 W. Washington
Stephenville, TX 76401

(254) 965-RENT

leasing@alpsstephenville.com

M: Closed

T-F: 8:30 am - 5:30 pm

Sat: 10:00 am - 2:00 pm

Sun: Closed

Links

  • Floor Plans
  • Amenities
  • Gallery
  • Contact
  • College Apartments
Call for After Hours Emergency

Copyright © 2026 | Privacy Policy